気分は国会議事堂
    物件お問い合せ番号『1730』
- 賃料
 - 9.8万円
 
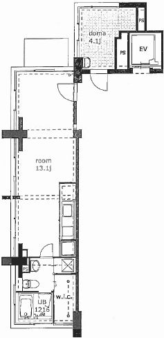
- 間取り
 - ワンルーム
 
- 平米数
 - 42.66 ㎡
 
- 所在地
 - 福岡市博多区古門戸町
 - 沿線・駅
 - 
                            福岡市営地下鉄箱崎線  呉服町
福岡市営地下鉄箱崎線 中洲川端
福岡市営地下鉄空港線 中洲川端
 
- 銀行・ATM
 - スーパー
 - コンビニ
 - ショッピングセンター
 - 飲食店
 - 公園
 - 閑静
 - 駅
 - バス停
 - レンタルショップ
 
テナント・店舗のおすすめポイント
大幅条件変更で再登場です☆
以下前回の文章です。
民主党の圧勝で終わった今回の衆議院選。
これからの日本がいい方向に進んでいけばいいのですが…
今回は未来君もちょっとは政治に興味があるんだぞぉ〜
というのを皆様にアピールしてみました☆
さてタイトルの件ですが、私自身国会議事堂に行ったことはありません。
でもなぜかこの部屋に入ったときに、国会議事堂の中ってこんな感じなのかなぁ…
と思ってしまいました。
この歴史ある雰囲気…
この重厚感…
なんかテレビで見たことあるぞ!!!
それでいて、水周りの設備は現代的♪
か、かっこいい…☆
さらに使い方自由の土間も付いています!!
福岡にいながら、国会議事堂を探索した気分になれる…
そんなお部屋でした!!
※SOHO使用可能です。
土間のスペースも広さに含まれているので、実際のお部屋の部分は表記よりも狭く感じるかと思います。
/地下鉄空港線「中洲川端駅」まで徒歩8分
    物件お問い合せ番号『1730』
                
            | 敷金 | 3ヶ月 | 敷引金 | |
|---|---|---|---|
| 共益費・その他 | 6,500円 | 礼金 | なし | 
| 保証金 | なし | 償却 | |
| 建築構造 | 鉄筋コンクリート造 | 取引様態 | 媒介 | 
| 管理形態 | 所在階/建物階数 | 2階/7階 | |
| 管理費/修繕積立金 | なし | 情報公開日 | 2018年11月13日 | 
| 備考 | 物件管理番号 | 1730 | |
| 設備 | エレベータ システムキッチン 温水洗浄便座 エアコン | ||
未来ビルに提案してもらう
このテナント・店舗について問い合わせする!
お問い合わせの際には物件番号「1730」でお伝え下さい
電話でのお問合せはこちら







