これこそリノベーションの醍醐味
    物件お問い合せ番号『4227』
- 賃料
 - 4.9万円
 
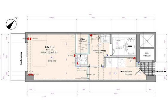
- 間取り
 - 1K/SK
 
- 平米数
 - 24 ㎡
 
- 所在地
 - 福岡市博多区祇園町
 - 沿線・駅
 - 
                            福岡市営地下鉄空港線  祇園
 
- 銀行・ATM
 - スーパー
 - コンビニ
 - ショッピングセンター
 - 飲食店
 - 公園
 - 閑静
 - 駅
 - バス停
 - レンタルショップ
 
テナント・店舗のおすすめポイント
皆さん、リノベーションは好きですか?
私は大好きです。。。
最近は多く見かけるリノベーション物件。
では、まずリノベーションとはなにか?
					
国土交通省のガイドラインにこんな言葉があります。								
リフォームとは「新築時の目論見に近づくように復元する」								
リノベーションとは「新築時とは違う次元に改修する」							
大規模なものでいくと、老朽化した使っていない倉庫を改修して近代的なオフィス・住居へ。								
建築当時の建物を用途までも変えてしまう改修もリノベーションと言われます。
簡単に言うと、、、、
リフォームとは、新築時の状態に戻すこと。
リノベーションとは、新築時の状態とは全く別の状態にする事。
そして今回の物件は後者です。
博多駅まで徒歩で行け、
女性が好きそうなアクセントクロス、フローリングに変え、
家賃もお手頃の価格。
さらに事務所としても使用可。
お部屋探しに困ったら、是非この物件を。
    物件お問い合せ番号『4227』
                
            | 敷金 | 無し | 敷引金 | 実費 | 
|---|---|---|---|
| 共益費・その他 | 共益費 5,000円 | 礼金 | 1ヶ月 | 
| 保証金 | 償却 | ||
| 建築構造 | 鉄筋コンクリート造 | 取引様態 | 媒介 | 
| 管理形態 | 所在階/建物階数 | 3階/7階 | |
| 管理費/修繕積立金 | 情報公開日 | 2018年11月15日 | |
| 備考 | 物件管理番号 | 4227 | |
| 設備 | B・T別室 シャワー TV付浴室 浴室暖房 浴室乾燥機 トイレ 温水洗浄便座 洗面所独立 2口コンロ IHクッキングヒーター システムキッチン 収納スペース クローゼット シューズボックス 照明器具 ダウンライト 室内洗濯機置場 給湯 フローリング 全居室フローリング エアコン CATV 光ファイバー MMコンセント オートロック モニタ付オートロック モニタ付インターホン ディンプルキー 防犯カメラ 火災警報器(報知機) バルコニー エレベーター | ||
未来ビルに提案してもらう
このテナント・店舗について問い合わせする!
お問い合わせの際には物件番号「4227」でお伝え下さい
電話でのお問合せはこちら









