戸建て感覚のデザイナーズマンション

- 物件お問い合わせ番号
- 2272
| 所在地 | 福岡市南区若久2丁目 |
|---|---|
| 賃料 | 15.5万円 |
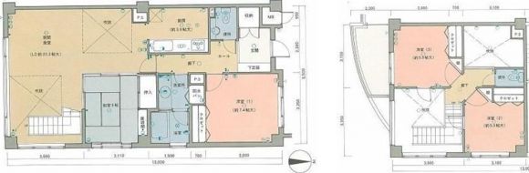
| 間取り | 4LDK/SLDK以上 |
| 面積 | 109.19 ㎡ |
| 最寄り駅 | 西鉄天神大牟田線 大橋 |
マンションなんだけど戸建て感覚のデザイナーズマンション。
室内はリノベーション済み!
メゾネットタイプのお部屋でリビングはドーンと広い24帖!
また天井が吹き抜けになっており開放感バツグン!!
水周りも改装!
キッチンは食器洗浄機付きです。
エアコンは4基サービスで付いています。
専用庭も付いてますので、色々な用途で使えそうです。
戸建ての良いところ、マンションの良いところが合わさったこの物件、是非一度ご内覧ください。
※駐車場は1台無料です。
/西鉄天神大牟田線「大橋駅」徒歩16分
NO.194
- お電話でのお問い合わせ先
- 092-282-6565 092-282-6565
- お問い合わせの際には物件番号「2272」でお伝え下さい
| 敷金 | 4ヶ月 |
|---|---|
| 敷引金 | 3.5 |
| 礼金 | 無し |
| 共益費 その他 |
無し |
| 建築構造 | RC造 |
| 取引様態 | 媒介 |
| 所在階/建物階数 | 1-2/3 |
| 情報公開日 | 2012年08月18日 |
| 設備 | 給湯 シャワー エアコン フローリング 室内洗濯機置場 TVモニター付インターフォン 追炊機能 温水洗浄便座 庭 |
| 備考 | 分譲タイプ メゾネット リノベーション工事(平成24年6月) |


