緑と空に囲まれ想像を掻き立てる。 楽器ご相談下さい。
- 物件お問い合わせ番号
- 4189
所在地 | 福岡市中央区小笹3丁目 |
---|---|
賃料 | 9.8万円 |
間取り | 2LDK/SLDK |
面積 | 99.46 ㎡ |
最寄り駅 | 西鉄天神大牟田線 西鉄平尾 |
賃料改定です。
異国から生まれたような空間。
ロマン溢れたお部屋がありました。
場所は「小笹」。
坂が多く住みにくいと思われがちですが、
公園やスーパーが多く、のんびりとした雰囲気は
個人的に好きなエリア。
このお部屋がある場所は、
徒歩圏内に24時間スーパー、コンビニ、銀行、郵便局など
住環境も優れています。中央区と南区の境にあり、
山越えのルートで、天神方面へは車で15分程。
近年、千早・薬院・平尾・七隈沿線エリアに
新築がズラズラと立ち並び、
昔ながらの街を残す場所も減ってきました。
のんびりとした街の雰囲気、この「小笹」には
どこか懐かしく、忘れかけていたものが
何か残っている気がします。
お部屋に入り、改めて福岡っていい場所だなと。。。
都心からすぐの場所にこんな場所があるなて。。。
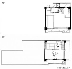
階段を上がり80㎡越えのルーフバルコニー、圧巻です。
一階は無垢と打ちっ放しの抜群の相性に囲まれたお部屋。
どこか別荘のような雰囲気があり、
ドアノブや電気スイッチなどには、
レトロ感満載の心擽る造りになっています。
隣の和室スペースには、
最近の新築・築浅のデザイナーズにはない、
趣のある何とも味がある空間。
やはり和室っていいなと改めて感じます。
キッチンスペースも広くとられ、
オーブン付きの充実システムキッチン。
一階は異空間ですが、2階スペースはすべて普通です。(笑)
使いやすく、和室・洋室共に使い勝手抜群でしょう。
強いて、欲を出すと水周り・・・と言いたいところですが
そこは我慢です。その他の魅力を取っても上回ります。
今まで見たこともないこのお部屋、いかがでしょう?
※楽器ご相談下さい。
→ピアノ等・・・。
/西鉄バス 小笹バス停 徒歩2分
- お電話でのお問い合わせ先
- 092-282-6565 092-282-6565
- お問い合わせの際には物件番号「4189」でお伝え下さい

敷金 | 1ヵ月 |
---|---|
敷引金 | 実費 |
礼金 | 2ヶ月 |
共益費 その他 |
共益費 8,000円 町費 500円 |
建築構造 | 鉄筋コンクリート造 |
取引様態 | 媒介 |
所在階/建物階数 | 7-8階/8階 |
情報公開日 | 2015年09月15日 |
設備 | 都市ガス エアコン 給湯 トイレ バス・トイレ別 シャワー 温水洗浄便座 CATV 収納スペース システムキッチン 洗面台 シャンプードレッサー 室内洗濯機置場 フローリング バルコニー テラス エレベータ オートロック TVモニタ付きインターホン 駐輪場 2口コンロ以上 独立洗面脱衣所 |
備考 | 楽器相談 二人入居可 日当り良好 分譲タイプ メゾネット 角部屋 外観タイル張り 管理人日勤 二世帯向き 最上階 リノベーション【場所[] 時期[]】 眺望良好 ペット不可 |








