時代と共に変わるもの。

- 物件お問い合わせ番号
 - 5156
 
| 所在地 | 福岡市早良区城西1丁目 | 
|---|---|
| 賃料 | 6.7万円 | 
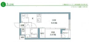
| 間取り | 1LDK/SLDK | 
| 面積 | 30.08 ㎡ | 
| 最寄り駅 | 福岡市営地下鉄空港線 西新 福岡市営地下鉄空港線 唐人町  | 
                        
今回ご紹介するお部屋は城西です。
城西は西新のお隣です。
なので西新商店街にほど近い、住みやすい場所なのです。
そしてこの物件の設備に注目。
充実感がすごいんじゃぁ!
「宅配ボックス」 ネットでの買い物に欠かせません。
不在通知はもうたくさんだ。。。
浴室乾燥機でお部屋干し!
PM2.5もへっちゃら。女性も安心。電気代注意。
ネット使い放題。ネット環境はこの時代不可欠。
携帯あれば事足りるとか言わないで使って下さい。
縁の下の力持ちTV付きモニターフォン
居留守使い放題。某受信ry、、、(自重)
ウォシュレット。あなたのお尻守ります。
お尻の味方。冬も暖めてくれるいいやつ。
お部屋の門番、オートロック。
ゴミだしの時うっかり締め出されて途方にくれる。
ウォークインクローゼット。収納力半端ないって!
急な来客も安心。必殺「とりあえず押し込む」が使えます。
もっと書きたいのですが止まらなくなるのでこの辺で。
時代とともに賃貸の設備の移り変わりは著しいです。
バランス釜も少なくなりましたね。。。(遠い目)
と、言うわけでこれを機に設備にも着眼してみてはいかがでしょう。
F
- お電話でのお問い合わせ先
 - 092-282-6565 092-282-6565
 - お問い合わせの際には物件番号「5156」でお伝え下さい
 
            | 敷金 | 無し | 
|---|---|
| 敷引金 | 実費 | 
| 礼金 | 2ヶ月 | 
| 共益費 その他  | 
                        共益費5,000円 町費300円 | 
| 建築構造 | 鉄筋コンクリート造 | 
| 取引様態 | 媒介 | 
| 所在階/建物階数 | 1階/5階 | 
| 情報公開日 | 2018年11月20日 | 
| 設備 | プロパンガス エアコン 給湯 トイレ バス・トイレ別 温水洗浄便座 BS端子 CS ウォークインクローゼット システムキッチン シャンプードレッサー 室内洗濯機置場 浴室乾燥機 フローリング ディンプルキー バルコニー エレベータ オートロック TVモニタ付きインターホン 宅配ボックス 駐輪場 バイク置場(屋外) 2口コンロ インターネット使い放題 独立洗面脱衣所 防犯カメラ シューズボックス | 
| 備考 | 敷地内駐車場あり 18,000円税別(空きは要確認) | 
                            
                            
                            
                            
                            

