広すぎー!驚愕の2LDK!!

- 物件お問い合わせ番号
- 5487
| 所在地 | 福岡市中央区小笹2丁目 |
|---|---|
| 賃料 | 8.4万円 |
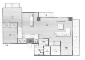
| 間取り | 2LDK/SLDK |
| 面積 | 102.71 ㎡ |
| 最寄り駅 | 福岡市営地下鉄七隈線 桜坂 |
驚愕!! フルリノベーション物件!!
間取りは2LDKで広さは102.71㎡!!
LDKは30帖 !! 広~~~~~~~~い!!!
これだけ広ければ、レイアウトは自由自在です。
しかも敷金、礼金0で初期費用も抑えれれます。
安~~~~~~~~い!!
ここまできてかなり良いお部屋ですが6階建ての6階、エレベーター無し
階段で6階、これはきついと思いましたが、坂に建っている為
4階からも入れます。
小笹という地域がら、丘の上にありますので坂道、階段は多くありますが
このお部屋なら問題なしではないでしょうか!!
- お電話でのお問い合わせ先
- 092-282-6565 092-282-6565
- お問い合わせの際には物件番号「5487」でお伝え下さい
| 敷金 | 無し |
|---|---|
| 敷引金 | 無し |
| 礼金 | 無し |
| 共益費 その他 |
共益費5,000円 雑費330円 |
| 償却 | 実費 |
| 建築構造 | 鉄筋コンクリート増 |
| 取引様態 | 媒介 |
| 所在階/建物階数 | 6階/6階 |
| 情報公開日 | 2021年07月06日 |
| 設備 | システムキッチン、カウンターキッチン、給湯、追焚機能、温水洗浄便座、バス・トイレ別、洗面所、洗面台、シャンプードレッサー、TVモニタ付きインターホン、火災報知機、収納スペース、ウォークインクローゼット、シューズボックス、全居室フローリング、都市ガス、駐輪場、バイク置場(屋外) |
| 備考 | 楽器相談、子供可、角部屋、ペット不可 駐車場空無し |


